HCII Băng tải đai nhỏ
Cat:Turning Băng tải
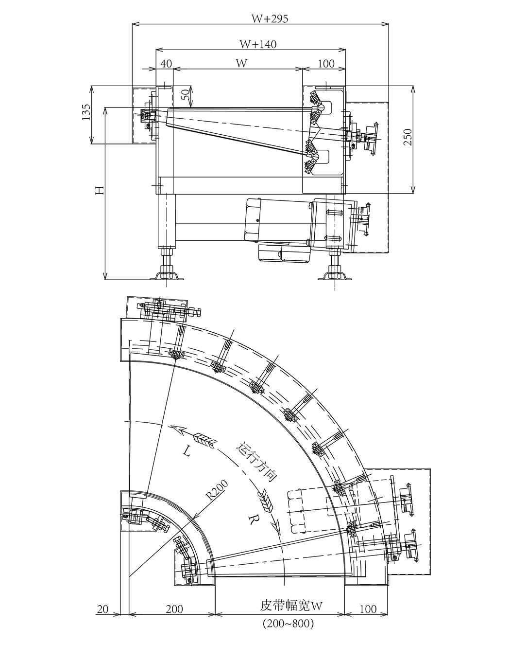
Thông qua sự hợp tác giữa bánh xe hướng dẫn và đường ray hướng dẫn, dây đai có thể được kéo và hư...
Cấu trúc nâng cao, hiệu suất chất lượng cao, dễ sử dụng, độ tin cậy và độ bền cao.
Máy xoay vòng quay là một thiết bị truyền tải phổ biến, chủ yếu được sử dụng để chuyển vật liệu từ một dòng băng tải đai sang băng tải vành đai đảo ngược 90 độ hoặc 180 độ khác. Nó bao gồm các thành phần như thắt lưng, khung, con lăn ổ đĩa, con lăn đảo ngược, pallet chịu tải, con lăn trở lại và thiết bị căng thẳng. Vật liệu của băng chuyền của máy xoay đai bao gồm các vật liệu khác nhau như PVC, PU, PVK, v.v. Ngoài việc được sử dụng để truyền tải các vật liệu thông thường, nó cũng có thể đáp ứng việc vận chuyển các vật liệu với các yêu cầu đặc biệt như kháng dầu, chống ăn mòn axit và kiềm và chống tĩnh.3333.

Thông qua sự hợp tác giữa bánh xe hướng dẫn và đường ray hướng dẫn, dây đai có thể được kéo và hư...
Thông qua sự hợp tác giữa bánh xe hướng dẫn và đường ray hướng dẫn, dây đai có thể được kéo và hướng dẫn để chạy.
Tính năng: Chi phí thấp, tải nhẹ và tốc độ thấp.
Kích thước tiêu chuẩn
Hcii-s
| Chiều rộng đai | 200 | 300 | 400 | 500 |
| Băng tải chiều rộng | 520 | 620 | 720 | 820 |
| Góc | 90 | Động cơ điện | 90W 120W 、 200W |
| Chiều cao | Cao 270 đến 1100 feet với | Quyền lực | AC100V (một pha) · AC200V (một pha) · AC200V (ba pha) |
| Tốc độ | Tốc độ cố định/biến | Thắt lưng | Vành đai polyurethane |
| Khả năng | 10kg/set (khi tải phân tán theo chiều ngang) |
Là hàng hóa túi di chuyển hàng hóa, xin vui lòng giữ lại 40% dữ liệu khả năng.
HCII-M
| Chiều rộng đai | 300 | 400 | 500 | 600 |
| Băng tải chiều rộng | 680 | 780 | 880 | 980 |
| Góc | 90 | Động cơ điện | 200W 、 400W |
| Chiều cao | Vui lòng chỉ định, chân là tùy chọn | Quyền lực | AC200V (ba pha) |
| Tốc độ | Tốc độ cố định | Thắt lưng | Vành đai polyurethane |
| Khả năng | 40kg/set (khi tải phân tán theo chiều ngang) |
Là hàng hóa túi di chuyển hàng hóa, xin vui lòng giữ lại 40% dữ liệu khả năng.
Tốc độ vành đai HCII-S
| Tỷ lệ | Tốc độ số | Tốc độ cố định 50/60 (Hz) (M/phút) | Tốc độ không | Tốc độ thay đổi 50/60 (HZX (M/phút) |
| 1/180 | T1 | 16./1.9 | H1 | 0.11 ~ 2,1 |
| 1/2050 | T2 | 1.8/2.2 | H2 | 0,13 ~ 2,5 |
| 1/2020 | T3 | 2.3/2.8 | H3 | 0,16 ~ 3,1 |
| 1/90 | T4 | 3.1/3.7 | H4 | 0,21-4.2 |
| 1/75 | T5 | 3,8/4.5 | H5 | 0,25 ~ 5,0 |
| 1/60 | T6 | 4,7/5.6 | H6 | 0,31 ~ 6,2 |
| 1/50 | T7 | 5.6/6.7 | H7 | 0,38 ~ 7,5 |
| 1/36 | T8 | 7,8/9.4 | H8 | 0,52-10,4 |
| 1/30 | T9 | 9.3/11.2 | H9 | 0,63 ~ 12,5 |
| 1/25 | T10 | 11.3/13.5 | H10 | 0,75 ~ 15.0 |
| 1/18 | T11 | 15.6/18.7 | H11 | 1.04 ~ 20.8 |
| 1/15 | T12 | 18.8/22.5 | H12 | 1,25 ~ 25.0 |
| 1/12,5 | T13 | 22,5/27.0 | H13 | 1,50 ~ 30,0 |
Tốc độ đai HCII-M
| Tỷ lệ | Tốc độ số | Tốc độ cố định 50/60 (Hz) (M/phút) |
| 1/2020 | T1 | 15/18 |
| 1/90 | T2 | 20/24 |
Tính toán tốc độ của tốc độ cố định: Tốc độ xoay 1500/1800 vòng/phút (50/60Hz), con lăn lái
Tính toán tốc độ của tốc độ thay đổi: Tốc độ xoay 2000rpm (50; 60Hz), con lăn lái 82.3, Hiệu suất lái xe: 95%
Bản vẽ

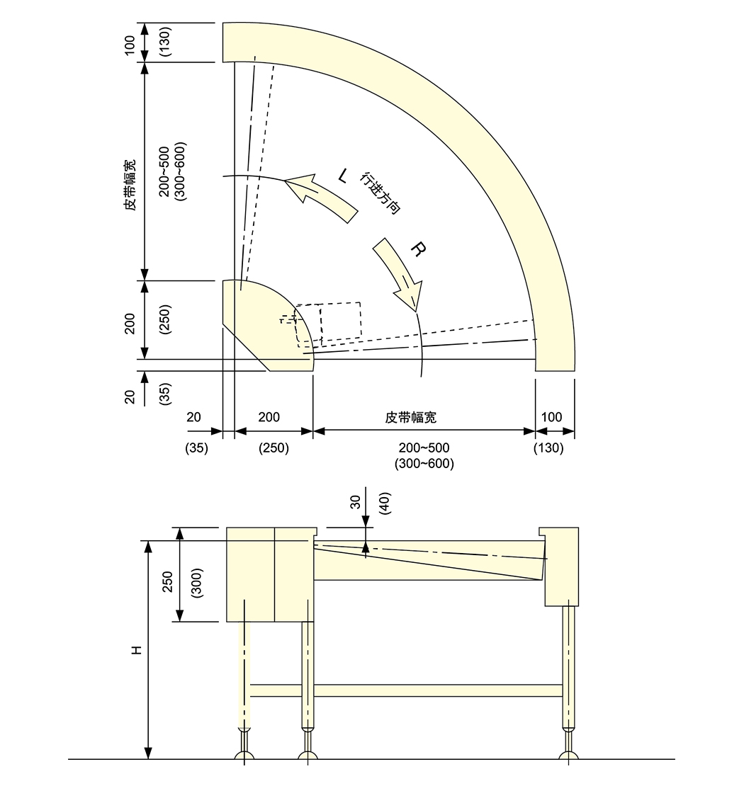
Thông qua sự hợp tác giữa bánh xe hướng dẫn và thanh hướng dẫn, dây đai được kéo và hướng dẫn để ...
Thông qua sự hợp tác giữa bánh xe hướng dẫn và thanh hướng dẫn, dây đai được kéo và hướng dẫn để chạy.
Tính năng: Tiếng ồn thấp, tốc độ cao và thậm chí lực đai.
Kích thước tiêu chuẩn
| Chiều rộng đai | 200 | 300 | 400 | 500 | 600 | 700 | 800 |
| Băng tải chiều rộng | 520 | 620 | 720 | 820 | 920 | 1020 | 1120 |
| Góc | 90 | Động cơ điện | 200W 、 370W 、 750W |
| Chiều cao | Cao 380 đến 1100 feet với | Quyền lực | A (AC110V một pha) B (AC200V một pha) C (AC200V/380V ba pha) |
| Tốc độ | Tốc độ cố định | Thắt lưng | Vành đai polyurethane |
| Khả năng | 100kg/set (khi tải phân tán theo chiều ngang) |
Là hàng hóa túi di chuyển hàng hóa, xin vui lòng giữ lại 40% dữ liệu khả năng.
Tốc độ thắt lưng
| Tỷ lệ | Tốc độ số | Tốc độ cố định 50/60 (Hz) (M/phút) | Tốc độ số | Tốc độ thay đổi 50Hz (m/phút) |
| 1/180 | T1 | 1.6/1.9 | H1 | 0,09-1.7 |
| 1/2050 | T2 | 1.9/2.3 | H2 | 0.1-2.1 |
| 1/2020 | T3 | 2.4/2.9 | H3 | 0,13-2.6 |
| 1/90 | T4 | 3.2/3.8 | H4 | 0,17-3,5 |
| 1/75 | T5 | 3,8/4.6 | H5 | 0,2-4,2 |
| 1/60 | T6 | 4,9/5,8 | H6 | 0,25-5.1 |
| 1/50 | T7 | 5,8/6,9 | H7 | 0,3-6.2 |
| 1/36 | T8 | 8/9.5 | H8 | 0,4 ~ 8,6 |
| 1/30 | T9 | 9,5/11,5 | H9 | 0,5-10,4 |
| 1/25 | T10 | 11,5/13.7 | H10 | 0,6-12,4 |
| 1/18 | T11 | 15,9/19 | H11 | 0,9-17.3 |
| 1/15 | T12 | 19.3/22.3 | H12 | 1 ~ 20.6 |
| 1/12,5 | T13 | 23/27.4 | H13 | 1.2-24.8 |
| 1/7.5 | T14 | 38.3/45.8 | H14 | 2.1-41.4 |
| 1/5 | T15 | 57,5/68.6 | H15 | 3.1-62 |
| 1/3.6 | T16 | 79,9/95.4 | H16 | 4.3-86.1 |
| 1/3 | T17 | 95,8/114.4 | H17 | 5.2-103.4 |
Tính toán tốc độ của tốc độ cố định: Tốc độ xoay 1500/1800 vòng/phút (50/60Hz), con lăn lái
Tính toán tốc độ của tốc độ thay đổi: Tốc độ xoay 2000rpm (50; 60Hz), con lăn lái 82.3, Hiệu suất lái xe: 95%
Bản vẽ

Thông qua sự hợp tác giữa chuỗi và bánh xe hướng dẫn, dây đai có thể được kéo và hướng dẫn. Tí...
Thông qua sự hợp tác giữa chuỗi và bánh xe hướng dẫn, dây đai có thể được kéo và hướng dẫn.
Tính năng: tải nặng và tốc độ nhanh.
Kích thước tiêu chuẩn
| Chiều rộng đai | 400 | 600 | 800 | 1000 | 1200 | 1400 | 1600 | 1800 |
| Băng tải chiều rộng | 525 | 725 | 925 | 1125 | 1325 | 1525 | 1725 | 1925 |
| Góc | 90 | Động cơ điện | 370W 、 750W 、 1.1kW 、 1.5kW 、 2,2kW |
| Chiều cao | Cao 550 đến 2000 feet với | Quyền lực | A (AC110V một pha) B (AC200V một pha) C (AC200V/380V ba pha) |
| Tốc độ | Tốc độ cố định | Thắt lưng | Poly (N-vinyl carbazole) |
| Khả năng | 200kg/set (khi tải phân tán theo chiều ngang) |
Là hàng hóa túi di chuyển hàng hóa, xin vui lòng giữ lại 40% dữ liệu khả năng.
Tốc độ thắt lưng
| Tỷ lệ | Tốc độ số | Tốc độ cố định 50/60 (Hz) (m/phút | Tốc độ số | Tốc độ thay đổi 50Hz (m/phút) |
| 1/2040 | T1 | 2.6/3.0 | H1 | 1.0-2.6 |
| 1/2020 | T2 | 2.8/3.5 | H2 | 1.1-2.8 |
| 1/2000 | T3 | 3.5/4.2 | H3 | 1.4 ~ 3,5 |
| 1/90 | T4 | 4.0/6.7 | H4 | 1.6 ~ 4.0 |
| 1/80 | T5 | 4.4/5,4 | H5 | 1.8-4.4 |
| 1/70 | T6 | 4,9/5,8 | H6 | 2.0-4,9 |
| 1/60 | T7 | 5,8/7.0 | H7 | 2.3-5.8 |
| 1/50 | T8 | 7.0/8.4 | H8 | 2.8 ~ 7,0 |
| 1/45 | T9 | 7,7/9.3 | H9 | 3.1 ~ 7,7 |
| 1/40 | T10 | 8,6/10.5 | H10 | 3,4 ~ 8,6 |
| 1/30 | T11 | 11.6/14.0 | H11 | 4,7 ~ 11.6 |
| 1/25 | T12 | 14.0/16.8 | H12 | 5.6 ~ 14.0 |
| 1/20 | T13 | 17,5/21.0 | H13 | 7.0-17.5 |
| 1/15 | T14 | 23.3/28.0 | H14 | 9.3 ~ 23.3 |
| 1/10 | T15 | 35.0/41.9 | H15 | 14.0-35.0 |
| 1/5 | T16 | 70.0/83.8 | H16 | 28.0-70.1 |
Tính toán tốc độ của tốc độ cố định: Tốc độ xoay 1500/1800 vòng/phút (50/60Hz), con lăn lái
Tính toán tốc độ của tốc độ thay đổi: Tốc độ xoay 2000rpm (50; 60Hz), con lăn lái 82.3, Hiệu suất lái xe: 95%
Bản vẽ
Tại sao việc bảo trì băng tải con lăn ảnh hưởng trực tiếp đến tuổi thọ hệ thống Băng tải con lăn ...
Đọc thêmĐiều gì tạo nên băng tải con lăn thực sự có tải trọng nặng? Băng tải con lăn hạng nặng được xác định k...
Đọc thêmBăng tải con lăn là gì và tại sao loại này lại quan trọng? Băng tải con lăn là hệ thống xử lý...
Đọc thêmTại sao băng tải con lăn vẫn là xương sống của việc xử lý vật liệu Băng tải con lăn nâng cao ...
Đọc thêmHệ thống băng tải di chuyển hàng triệu tấn vật liệu mỗi ngày qua các nhà máy, nhà kho, khu khai thá...
Đọc thêmSơ lược về các loại hệ thống băng tải chính Băng tải đai các hệ thống thuộc một số loại cốt l...
Đọc thêmMang nghề thủ công cho tương lai.
Số 60, Đường Bắc Zhenhu, Thị trấn Hudai, Quận Binhu , WUXI 214100, Trung Quốc







